Cold room swing doors
Description of Cold room swing doors
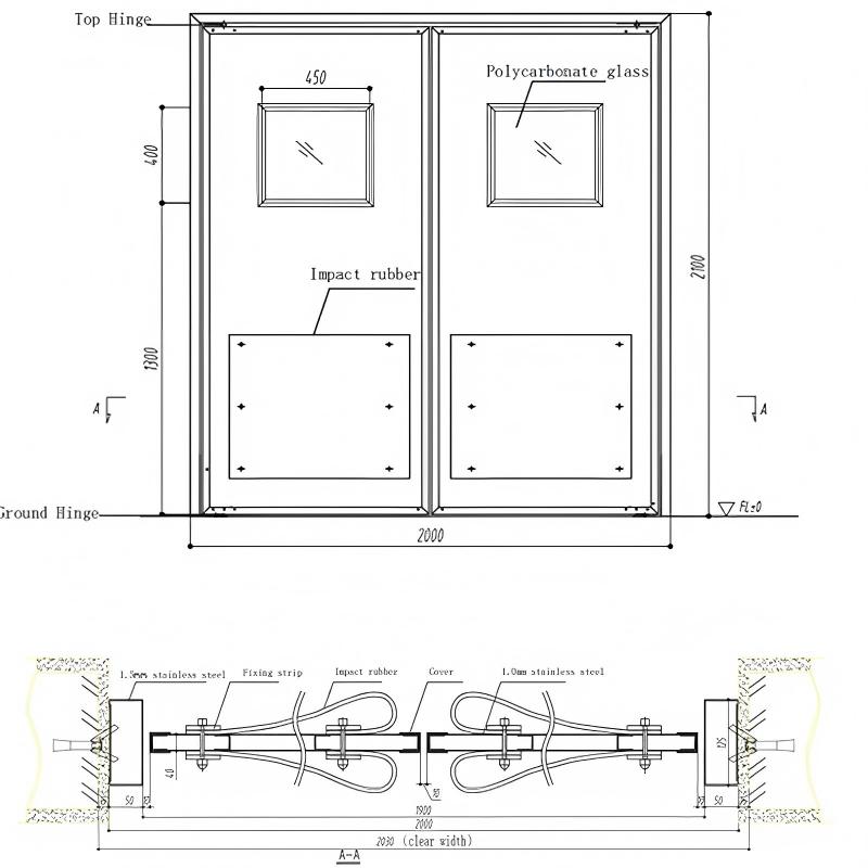
The door body features a high‑density PU/PIR foam core with one‑step foaming for uniform insulation and structural rigidity. Finished in stainless steel or color steel plate, it resists corrosion, moisture, and daily wear. Full‑perimeter EPDM rubber gaskets create an airtight seal, while an optional anti‑icing heating belt prevents frost buildup in low‑temperature freezers.
Equipped with heavy‑duty stainless steel hinges and a secure cam lock, the door opens and closes smoothly with self‑closing functionality for added convenience. It supports single‑leaf and double‑leaf configurations, with customizable sizes to fit various cold rooms, walk‑in freezers, blast freezers, and clean areas.
Core characteristics of Cold room swing doors
Superior Thermal Insulation Performance
The primary function of cold room swing doors is to minimize heat transfer, and they achieve this through advanced insulation design and materials. The door panels are typically filled with high-density polyurethane (PU) foam, which has a closed-cell rate of over 90% and a thermal conductivity coefficient as low as 0.024 W/m·K, providing exceptional thermal resistance. This dense foam core effectively blocks heat exchange between the cold room interior and the external environment, preventing temperature fluctuations and ensuring the stability of stored goods.
The door frames are constructed with hybrid or aluminum alloy profiles that eliminate cold bridges, further enhancing insulation efficiency. For freezer rooms operating at temperatures as low as -40°C, door thicknesses can reach 100mm or 150mm, with specialized low-temperature resistant insulation materials to maintain performance in extreme cold. This superior insulation directly reduces the workload of refrigeration systems, leading to significant long-term energy savings and lower operational costs.
Excellent Airtight and Moisture-Proof Sealing
Airtight sealing is critical to prevent cold air leakage and warm air infiltration, which are major causes of energy waste and condensation. Cold room swing doors feature multi-layered sealing systems, including tongue-and-groove door panel designs, high-elastic EPDM rubber gaskets around the door edges, and magnetic PVC sealing strips at the bottom. These seals create a tight, airtight barrier when the door is closed, eliminating gaps that allow air exchange.
The magnetic sealing strips automatically adhere to the door frame, compensating for minor installation or structural errors and ensuring consistent sealing performance even with frequent use. Additionally, the door panels are equipped with built-in vapor barriers to prevent moisture penetration, which stops condensation buildup inside the door structure and avoids issues like mold growth, material degradation, and reduced insulation effectiveness. This moisture-proof design is vital for maintaining the hygiene and quality of food, pharmaceuticals, and other temperature-sensitive products.
Robust Durability and Structural Strength
Cold room swing doors are engineered to withstand heavy, continuous use in demanding industrial environments. The door panels are made of high-quality materials such as 304/316 stainless steel, galvanized steel, or aluminum alloy, with surface treatments like static powder coating or anodizing to resist corrosion, scratches, and impact. The internal frame is reinforced with heavy-duty steel or aluminum structures, providing high mechanical strength and preventing deformation under repeated opening and closing.
The hardware components, including hinges, latches, and handles, are made of zinc alloy or stainless steel, offering excellent wear resistance and load-bearing capacity. The hinges are three-way adjustable, self-rising, and can support a maximum opening angle of 180°, with a retention position at 120° for convenient access. These doors are designed to withstand thousands of daily operations without performance degradation, and their low-maintenance design reduces downtime and repair costs. They also meet B-grade fire resistance standards, self-extinguishing when exposed to fire, enhancing overall facility safety.
User-Friendly and Safe Operation
Cold room swing doors prioritize ease of use and personnel safety, with multiple features to ensure smooth and secure operation. They are equipped with self-closing mechanisms, such as spring hinges or hydraulic closers, which automatically return the door to the closed position after opening, preventing accidental cold air loss. For high-traffic areas, optional automatic sensor systems enable hands-free opening and closing, improving operational efficiency.
Safety is a core design focus: all doors include emergency release handles inside the cold room, allowing personnel to exit quickly in case of accidental lock-in. The door hardware is designed to be easy to operate with gloved hands, suitable for cold environments where workers wear protective gear. Optional features like heated vision panels prevent fogging and ice buildup, ensuring clear visibility through the door without compromising insulation. The doors also support smooth manual operation even when power is lost, as the electric drive components automatically disengage during outages.
Food Service: Restaurants, Cafeterias, Commercial Kitchens.
Retail: Supermarkets, Convenience Stores, Florists.
Industrial: Cold Storage Warehouses, Meat Processing Plants, Pharmaceutical Storage.
Medical: Vaccine Storage, Laboratory Cold Rooms.
| Product Type |
Cold Room Swing Door |
|
Door
Thickness |
Standard
40mm (1.57") / Heavy Duty 50mm (2") options available |
|
Surface
Material |
High-impact
Polyethylene (PE) / 304 Stainless Steel / ABS |
|
Insulation
Core |
High-density
injected Polyurethane (PU) foam (CFC-Free) |
|
Impact
Resistance |
Designed
for Hand Truck, Pallet Jack, and Forklift traffic |
|
Hinge
System |
Stainless
Steel V-Cam Gravity Hinges (180° swing) |
|
Window
/ Vision Panel |
Double-glazed
Polycarbonate or Acrylic with rubber molding (Standard size: 300x400mm) |
|
Gasket
/ Seals |
EPDM
rubber perimeter seals (Replaceable), Oil and Low-temp resistant |
|
Temperature Range |
-40°C to +50°C (-40°F to 122°F) |
|
Bumper
Strips |
Optional:
bumpers or flat impact plates (Heights: 300mm to 1000mm) |
|
Frame
Compatibility |
Mounts
to C-Channel Steel, Stainless Steel, or Wood jambs |
|
Operation |
Dual-acting
(swings in both directions), Self-closing |
|
Cleaning |
Washdown
compatible, resistant to mild acids and alkalis |
FAQ
1. What is a cold storage swing door (often called a "free door")?
A cold storage swing door is a double-acting door designed for high-traffic areas. It can open 180 degrees (in both directions) and closes automatically using gravity hinges. It is designed to separate different temperature zones while allowing people and forklifts to pass through quickly.
2. What are the other names for a cold storage swing door?
In the industry, these are also known as Traffic Doors, Impact Doors, Crash Doors, Double Acting Doors, or Service Doors.
3. What is the main difference between a swing door and a sliding cold room door?
A sliding door provides a tighter thermal seal and is meant for storage rooms that are not opened frequently. A swing (traffic) door is designed for processing areas or loading docks with high frequency of entry/exit, prioritizing speed and workflow efficiency over a hermetic seal.
4. Can forklifts drive directly through these doors?
Yes, provided the door is equipped with protective bumpers (kick plates). The doors are designed to absorb impact and swing open when pushed by a forklift or pallet jack.
5. Are cold storage swing doors suitable for deep freeze (-20°C) applications?
Generally, swing doors are best for chillers (0°C to 10°C), food processing rooms, and loading docks. For deep freezers, we recommend a heavy-duty sliding door with heater wires to prevent freezing shut, although some insulated traffic doors can be used in mild freezer applications.
6. Do these doors help with energy saving?
Yes. By closing automatically and immediately after a person passes through, they minimize the infiltration of warm air and humidity, significantly reducing the load on your refrigeration system compared to keeping a door propped open.
7. Are your doors compliant with food safety standards (HACCP/GMP)?
Yes. Our doors are designed with smooth surfaces, no visible screws (where bacteria can hide), and food-grade materials like #304 Stainless Steel, making them easy to clean and compliant with international food hygiene standards.
8. What is the standard thickness of the door panel?
Our standard impact traffic doors typically feature a panel thickness of 40mm, which provides a good balance between insulation and lightweight operation.
9. What insulation material is used inside the door?
We use high-density Polyurethane (PU) foam injected under high pressure. This provides excellent thermal insulation and structural strength.
10. What material is the door surface made of?
Customers can choose between 304 Stainless Steel (best for hygiene and durability) or Painted Galvanized Steel (cost-effective). We also offer ABS or PE facing for specific impact requirements.
11. How does the "Gravity Hinge" system work?
Unlike spring hinges that can wear out, a Gravity Hinge uses the weight of the door to close it. When the door is pushed open, it rises slightly; gravity then pulls it back to the closed center position. This system is extremely durable and virtually maintenance-free.
12. Can the door stay open if needed (Hold-Open feature)?
Yes. The hinge design allows the door to "dwell" or stay open when pushed past 90 degrees. This is useful during sustained loading periods.
13. Are the windows on the door shatterproof?
Yes. We use double-glazed acrylic or polycarbonate windows. They are designed to be shatter-resistant for safety in busy industrial environments.
14. What are the "Bumpers" or "Kick Plates" made of?
We use high-impact PE (Polyethylene) or PVC sheets. These are installed on the lower half of the door to protect the stainless steel panel from scratches and dents caused by carts and forklifts.
15. What type of seal is used around the door edges?
We use high-quality, tear-resistant rubber gaskets along the vertical edges to prevent air leakage. These gaskets are easily replaceable.
16. Can these doors be installed on sandwich panel walls?
Yes, but the wall opening requires reinforcement. We recommend installing a C-channel sub-frame (aluminum or steel) inside the panel opening to support the weight and movement of the door.
17. Do you offer single-leaf and double-leaf options?
Yes. For narrow openings (under 1.2m wide), we recommend a Single Leaf door. For wider openings (up to 2.4m or more), a Double Leaf door is required.
18. Can I customize the size of the window?
Yes, while we have standard window sizes, we can customize the vision panel size or shape based on your specific requirements.
19. How do I measure the opening for a swing door?
We need the Clean Opening Width and Clean Opening Height (finish-to-finish dimensions). If you have a sub-frame installed, please measure the inside of the frame.
20. Is the installation process difficult?
No, it is relatively straightforward. The door frame is mounted to the wall, and the door leaves drop onto the hinge pins. Detailed installation manuals and video guides are provided with every order.
21. How long is the warranty period?
We provide a standard 1-year warranty on the door panel and hardware against manufacturing defects.
22. Do the hinges require lubrication?
Our gravity hinges are designed to be self-lubricating or use nylon bearings, requiring very little maintenance. However, applying a food-safe grease once a year ensures smooth operation.
23. Are spare parts (gaskets, hinges) easily available?
Yes. We stock all necessary spare parts. Since gaskets are wear-and-tear items, we can include extra sets in your initial shipment upon request.
24. What happens if the door gets scratched?
If you choose the Stainless Steel finish, minor scratches can be buffed out. For deep impacts, the bumper plates are designed to take the hit, preserving the structural integrity of the door.
25. How do you package the doors for export to prevent damage?
We use a triple-layer protection method: PE film wrapping + foam corner guards + fumigation-free plywood cases. This ensures the doors arrive scratch-free.
26. What is the Minimum Order Quantity (MOQ)?
Our MOQ is 1 set. We are happy to support both small sample orders and large project bulk orders.
27. What is the production lead time?
For standard sizes, production takes 7-10 days. For custom sizes or large quantities, it typically takes 15-20 days.
28. Can you print our company logo on the packaging?
Yes, we offer OEM services. We can label the packaging with your brand name, logo, and project reference numbers.










