Custom PVC Cold room swing door
Description of Custom PVC Cold room swing door
Our Custom PVC Cold Room Swing Door is engineered for reliable performance in cold storage, walk‑in freezers, food processing, and logistics environments. Built with flexible, low‑temperature‑resistant PVC, it maintains excellent elasticity and sealing even down to ‑25°C, minimizing cold air loss and lowering energy consumption. The door supports bidirectional swing and automatic return for smooth, hands‑free passage by personnel, trolleys, and light forklifts.
Designed for durability and hygiene, the non‑toxic, food‑safe PVC panel is easy to clean, impact‑resistant, and anti‑curl for long service life. Stainless steel hinges and hardware ensure stable operation and corrosion resistance in humid, low‑temp conditions. We offer full customization: size, thickness, transparency, color, and accessories like view windows and bumper guards to match your opening and workflow.
Lightweight yet heavy‑duty, this door combines strong thermal insulation, quiet operation, and easy installation. It is the ideal high‑performance access solution for commercial cold rooms, refrigerated warehouses, and food‑grade facilities.
Core characteristics of Custom PVC Cold room swing door
Excellent Thermal Insulation Performance
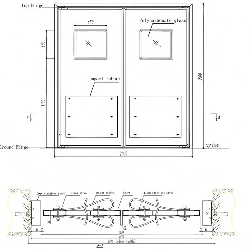
The core advantage of custom PVC cold room swing doors is outstanding thermal insulation. High-density PVC panels with integrated insulation layers effectively block heat exchange between the inside and outside of cold rooms. The door panels feature stable insulation performance across a wide temperature range, typically from -20°F to 140°F, suitable for both coolers and freezers. Tight peripheral seals eliminate gaps at the frame, floor, and door edges to prevent cold air leakage and warm air infiltration. This stable insulation reduces the load on refrigeration systems, lowers power consumption, and maintains consistent temperature control for stored goods.
Food Grade and Hygienic Design
All PVC materials used in these swing doors comply with international food contact standards, making them safe for direct use in food processing, meat storage, dairy production, and fresh produce handling. The non-porous PVC surface resists moisture absorption, mold, bacteria, and dirt accumulation. The smooth surface is easy to clean and disinfect with standard detergents, supporting high-hygiene operating environments. The door structure has no hidden crevices where debris or condensate can collect, supporting compliance with food safety and GMP requirements.
Durable and Impact Resistant Construction
Custom PVC cold room swing doors are built for heavy-duty industrial use. High-tensile PVC panels resist cracking, warping, and deformation in low-temperature conditions. Reinforced edges and impact-resistant zones withstand repeated contact from trolleys, pallet jacks, and light forklifts. The door structure maintains integrity even with hundreds of daily operations. Frames and hardware are available in corrosion-resistant 304 stainless steel for long-term use in humid and low-temperature environments without rust or degradation.
Smooth Operation and Automatic Closing
These swing doors feature a balanced bi-directional opening mechanism for easy, light-pressure operation by personnel or equipment. The self-closing hinge system ensures quiet, reliable return to the closed position after every pass, minimizing air exchange time. The smooth swinging motion reduces noise and improves workplace safety. Adjustable closing speed and tension allow fine-tuning for different traffic volumes and site conditions, supporting efficient workflow while preserving cold room conditions.
Food Service: Restaurants, Cafeterias, Commercial Kitchens.
Retail: Supermarkets, Convenience Stores, Florists.
Industrial: Cold Storage Warehouses, Meat Processing Plants, Pharmaceutical Storage.
Medical: Vaccine Storage, Laboratory Cold Rooms.
| Product Type |
Custom PVC Cold room swing door |
|
Door
Thickness |
Standard
40mm (1.57") / Heavy Duty 50mm (2") options available |
|
Surface
Material |
High-impact
Polyethylene (PE) / 304 Stainless Steel / ABS |
|
Insulation
Core |
High-density
injected Polyurethane (PU) foam (CFC-Free) |
|
Impact
Resistance |
Designed
for Hand Truck, Pallet Jack, and Forklift traffic |
|
Hinge
System |
Stainless
Steel V-Cam Gravity Hinges (180° swing) |
|
Window
/ Vision Panel |
Double-glazed
Polycarbonate or Acrylic with rubber molding (Standard size: 300x400mm) |
|
Gasket
/ Seals |
EPDM
rubber perimeter seals (Replaceable), Oil and Low-temp resistant |
|
Temperature Range |
-40°C to +50°C (-40°F to 122°F) |
|
Bumper
Strips |
Optional:
bumpers or flat impact plates (Heights: 300mm to 1000mm) |
|
Frame
Compatibility |
Mounts
to C-Channel Steel, Stainless Steel, or Wood jambs |
|
Operation |
Dual-acting
(swings in both directions), Self-closing |
|
Cleaning |
Washdown
compatible, resistant to mild acids and alkalis |
FAQ
1. What is a cold storage swing door (often called a "free door")?
A cold storage swing door is a double-acting door designed for high-traffic areas. It can open 180 degrees (in both directions) and closes automatically using gravity hinges. It is designed to separate different temperature zones while allowing people and forklifts to pass through quickly.
2. What are the other names for a cold storage swing door?
In the industry, these are also known as Traffic Doors, Impact Doors, Crash Doors, Double Acting Doors, or Service Doors.
3. What is the main difference between a swing door and a sliding cold room door?
A sliding door provides a tighter thermal seal and is meant for storage rooms that are not opened frequently. A swing (traffic) door is designed for processing areas or loading docks with high frequency of entry/exit, prioritizing speed and workflow efficiency over a hermetic seal.
4. Can forklifts drive directly through these doors?
Yes, provided the door is equipped with protective bumpers (kick plates). The doors are designed to absorb impact and swing open when pushed by a forklift or pallet jack.
5. Are cold storage swing doors suitable for deep freeze (-20°C) applications?
Generally, swing doors are best for chillers (0°C to 10°C), food processing rooms, and loading docks. For deep freezers, we recommend a heavy-duty sliding door with heater wires to prevent freezing shut, although some insulated traffic doors can be used in mild freezer applications.
6. Do these doors help with energy saving?
Yes. By closing automatically and immediately after a person passes through, they minimize the infiltration of warm air and humidity, significantly reducing the load on your refrigeration system compared to keeping a door propped open.
7. Are your doors compliant with food safety standards (HACCP/GMP)?
Yes. Our doors are designed with smooth surfaces, no visible screws (where bacteria can hide), and food-grade materials like #304 Stainless Steel, making them easy to clean and compliant with international food hygiene standards.
8. What is the standard thickness of the door panel?
Our standard impact traffic doors typically feature a panel thickness of 40mm, which provides a good balance between insulation and lightweight operation.
9. What insulation material is used inside the door?
We use high-density Polyurethane (PU) foam injected under high pressure. This provides excellent thermal insulation and structural strength.
10. What material is the door surface made of?
Customers can choose between 304 Stainless Steel (best for hygiene and durability) or Painted Galvanized Steel (cost-effective). We also offer ABS or PE facing for specific impact requirements.
11. How does the "Gravity Hinge" system work?
Unlike spring hinges that can wear out, a Gravity Hinge uses the weight of the door to close it. When the door is pushed open, it rises slightly; gravity then pulls it back to the closed center position. This system is extremely durable and virtually maintenance-free.
12. Can the door stay open if needed (Hold-Open feature)?
Yes. The hinge design allows the door to "dwell" or stay open when pushed past 90 degrees. This is useful during sustained loading periods.
13. Are the windows on the door shatterproof?
Yes. We use double-glazed acrylic or polycarbonate windows. They are designed to be shatter-resistant for safety in busy industrial environments.
14. What are the "Bumpers" or "Kick Plates" made of?
We use high-impact PE (Polyethylene) or PVC sheets. These are installed on the lower half of the door to protect the stainless steel panel from scratches and dents caused by carts and forklifts.
15. What type of seal is used around the door edges?
We use high-quality, tear-resistant rubber gaskets along the vertical edges to prevent air leakage. These gaskets are easily replaceable.
16. Can these doors be installed on sandwich panel walls?
Yes, but the wall opening requires reinforcement. We recommend installing a C-channel sub-frame (aluminum or steel) inside the panel opening to support the weight and movement of the door.
17. Do you offer single-leaf and double-leaf options?
Yes. For narrow openings (under 1.2m wide), we recommend a Single Leaf door. For wider openings (up to 2.4m or more), a Double Leaf door is required.
18. Can I customize the size of the window?
Yes, while we have standard window sizes, we can customize the vision panel size or shape based on your specific requirements.
19. How do I measure the opening for a swing door?
We need the Clean Opening Width and Clean Opening Height (finish-to-finish dimensions). If you have a sub-frame installed, please measure the inside of the frame.
20. Is the installation process difficult?
No, it is relatively straightforward. The door frame is mounted to the wall, and the door leaves drop onto the hinge pins. Detailed installation manuals and video guides are provided with every order.
21. How long is the warranty period?
We provide a standard 1-year warranty on the door panel and hardware against manufacturing defects.
22. Do the hinges require lubrication?
Our gravity hinges are designed to be self-lubricating or use nylon bearings, requiring very little maintenance. However, applying a food-safe grease once a year ensures smooth operation.
23. Are spare parts (gaskets, hinges) easily available?
Yes. We stock all necessary spare parts. Since gaskets are wear-and-tear items, we can include extra sets in your initial shipment upon request.
24. What happens if the door gets scratched?
If you choose the Stainless Steel finish, minor scratches can be buffed out. For deep impacts, the bumper plates are designed to take the hit, preserving the structural integrity of the door.
25. How do you package the doors for export to prevent damage?
We use a triple-layer protection method: PE film wrapping + foam corner guards + fumigation-free plywood cases. This ensures the doors arrive scratch-free.
26. What is the Minimum Order Quantity (MOQ)?
Our MOQ is 1 set. We are happy to support both small sample orders and large project bulk orders.
27. What is the production lead time?
For standard sizes, production takes 7-10 days. For custom sizes or large quantities, it typically takes 15-20 days.
28. Can you print our company logo on the packaging?
Yes, we offer OEM services. We can label the packaging with your brand name, logo, and project reference numbers.









