PVC Cold Storage swing door
Description of PVC Cold Storage swing door
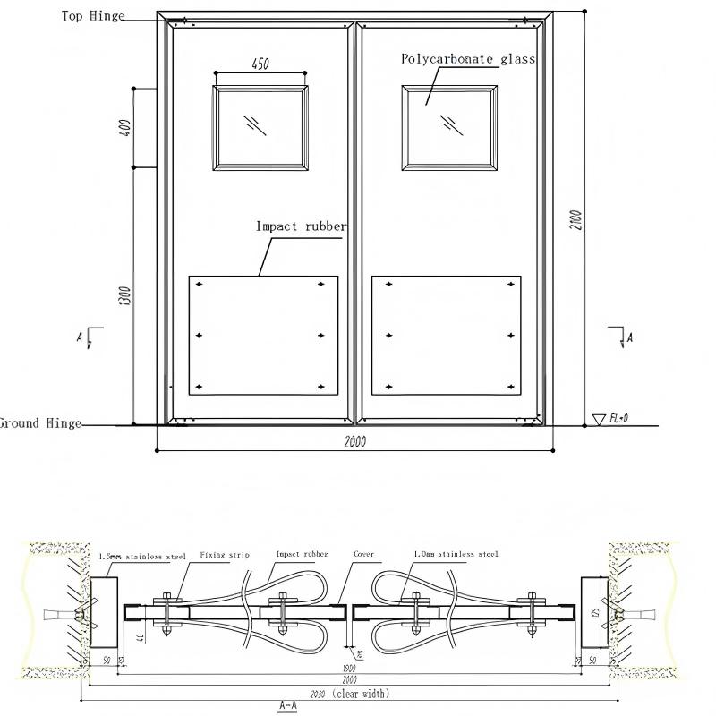
Our PVC Cold Storage Swing Door is a high-performance access solution engineered for reliable temperature control, efficient workflow, and long service life in cold rooms, freezers, food processing facilities, warehouses, and logistics centers.
Constructed with flexible, low-temperature resistant PVC panel that remains elastic and crack-proof down to -25°C, it delivers strong thermal insulation to minimize cold air loss, stabilize internal temperature, and cut energy consumption. The door supports 180° bidirectional swing with automatic slow return, enabling smooth, hands‑free passage for personnel, carts, and light equipment.
Built with a robust 304 stainless steel frame and hardware, it resists impact, corrosion, and moisture while meeting strict hygiene standards for easy cleaning and compliance with food‑safe requirements. The tight peripheral seal blocks dust, insects, and heat infiltration, preserving clean and controlled environments.
Compact, durable, and low‑maintenance, this PVC Cold Storage Swing Door combines safety, efficiency, and economy — ideal for daily high‑frequency use in professional cold chain environments.
Core characteristics of PVC Cold Storage swing door
Material and Thermal Performance
The foundation of the PVC cold storage swing door is its high-performance PVC panel, specifically formulated for low-temperature resilience and thermal insulation. The panels are available in multiple thicknesses, ranging from 3mm for light-duty applications to 12mm for heavy-industrial use, with 7mm being the industry standard for heavy-duty cold storage traffic. This specialized PVC, often referred to as polar PVC, remains flexible even at extreme low temperatures down to -25°C (-13°F), eliminating brittleness and cracking that can occur with standard plastics in freezer environments. For temperature stability, the doors operate reliably across a broad range from -20°F to 140°F, adapting seamlessly to both deep-freeze storage and refrigerated processing areas.
Structural and Mechanical Design
The structural design of PVC cold storage swing doors prioritizes durability, bi-directional functionality, and low maintenance in high-traffic environments. The doors feature a bi-directional swing mechanism that allows 90-degree opening in both directions, with some heavy-duty models offering 180-degree swing for maximum flexibility. This design enables seamless passage for both personnel and material handling equipment, including forklifts, pallet jacks, and hydraulic carts, without the need for manual door operation or electrical power. An adjustable torsion spring hinge system, paired with an eccentric shaft design, powers the automatic closing function, ensuring the door returns to the closed position quietly and slowly after each use. The torsion mechanism is housed in the door frame head, and tension can be adjusted with a simple tool to accommodate different traffic volumes and door weights, preventing slamming and reducing wear on components.
Hygiene and Maintenance
PVC cold storage swing doors are designed for maximum hygiene and minimal maintenance, aligning with the strict cleanliness requirements of food and pharmaceutical industries. The smooth, non-porous surface of the PVC panels prevents the accumulation of dirt, dust, and bacteria, and resists water absorption, making cleaning quick and efficient. The panels can be easily wiped down with common industrial cleaning agents, including disinfectants and degreasers, without damage to the material, and are compatible with high-pressure washdown systems for deep cleaning. Unlike fabric curtains, PVC panels do not trap food particles or moisture, reducing the risk of mold and bacterial growth and ensuring compliance with HACCP and FDA sanitation standards.
All hardware components are selected for corrosion resistance and low maintenance. SUS304 stainless steel hinges, brackets, and fasteners eliminate the need for regular painting or rust treatment, even in constant contact with cold, humid air. The torsion spring mechanism is sealed to prevent dust and moisture ingress, ensuring reliable operation without frequent lubrication or adjustment. The door’s modular design simplifies assembly and installation, with universal mounting brackets included for compatibility with most cold room door jambs, reducing installation time and labor costs. Replacement parts, such as PVC panels, sealing strips, and hinges, are readily available and can be installed without specialized tools, minimizing downtime for maintenance.
Safety and Operational Efficiency
Safety is integrated into every aspect of the PVC cold storage swing door’s design, making it suitable for high-traffic industrial environments. The clear PVC panels provide 360-degree visibility, allowing personnel to see oncoming traffic and avoid collisions, a critical feature in facilities with frequent forklift and pedestrian movement. The flexible PVC construction acts as a natural shock absorber, minimizing injury risk if personnel or equipment come into contact with the door during operation. The slow, quiet automatic closing mechanism prevents slamming, reducing the risk of pinched fingers and creating a safer working environment.
Operational efficiency is enhanced by the door’s ability to balance traffic flow with temperature control. The fast, automatic closing reduces cold air loss by minimizing the time the door remains open, directly translating to lower energy consumption for refrigeration systems. In high-traffic facilities, the bi-directional swing design eliminates bottlenecks, allowing simultaneous passage of personnel and equipment and improving overall workflow efficiency. The door’s passive operation, requiring no electrical connections, eliminates the risk of power failures disrupting access to cold storage areas and reduces installation complexity and ongoing utility costs.
Food Service: Restaurants, Cafeterias, Commercial Kitchens.
Retail: Supermarkets, Convenience Stores, Florists.
Industrial: Cold Storage Warehouses, Meat Processing Plants, Pharmaceutical Storage.
Medical: Vaccine Storage, Laboratory Cold Rooms.
| Product Type |
PVC Cold Storage swing door |
|
Door
Thickness |
Standard
40mm (1.57") / Heavy Duty 50mm (2") options available |
|
Surface
Material |
High-impact
Polyethylene (PE) / 304 Stainless Steel / ABS |
|
Insulation
Core |
High-density
injected Polyurethane (PU) foam (CFC-Free) |
|
Impact
Resistance |
Designed
for Hand Truck, Pallet Jack, and Forklift traffic |
|
Hinge
System |
Stainless
Steel V-Cam Gravity Hinges (180° swing) |
|
Window
/ Vision Panel |
Double-glazed
Polycarbonate or Acrylic with rubber molding (Standard size: 300x400mm) |
|
Gasket
/ Seals |
EPDM
rubber perimeter seals (Replaceable), Oil and Low-temp resistant |
|
Temperature Range |
-40°C to +50°C (-40°F to 122°F) |
|
Bumper
Strips |
Optional:
bumpers or flat impact plates (Heights: 300mm to 1000mm) |
|
Frame
Compatibility |
Mounts
to C-Channel Steel, Stainless Steel, or Wood jambs |
|
Operation |
Dual-acting
(swings in both directions), Self-closing |
|
Cleaning |
Washdown
compatible, resistant to mild acids and alkalis |
FAQ
1. What is a cold storage swing door (often called a "free door")?
A cold storage swing door is a double-acting door designed for high-traffic areas. It can open 180 degrees (in both directions) and closes automatically using gravity hinges. It is designed to separate different temperature zones while allowing people and forklifts to pass through quickly.
2. What are the other names for a cold storage swing door?
In the industry, these are also known as Traffic Doors, Impact Doors, Crash Doors, Double Acting Doors, or Service Doors.
3. What is the main difference between a swing door and a sliding cold room door?
A sliding door provides a tighter thermal seal and is meant for storage rooms that are not opened frequently. A swing (traffic) door is designed for processing areas or loading docks with high frequency of entry/exit, prioritizing speed and workflow efficiency over a hermetic seal.
4. Can forklifts drive directly through these doors?
Yes, provided the door is equipped with protective bumpers (kick plates). The doors are designed to absorb impact and swing open when pushed by a forklift or pallet jack.
5. Are cold storage swing doors suitable for deep freeze (-20°C) applications?
Generally, swing doors are best for chillers (0°C to 10°C), food processing rooms, and loading docks. For deep freezers, we recommend a heavy-duty sliding door with heater wires to prevent freezing shut, although some insulated traffic doors can be used in mild freezer applications.
6. Do these doors help with energy saving?
Yes. By closing automatically and immediately after a person passes through, they minimize the infiltration of warm air and humidity, significantly reducing the load on your refrigeration system compared to keeping a door propped open.
7. Are your doors compliant with food safety standards (HACCP/GMP)?
Yes. Our doors are designed with smooth surfaces, no visible screws (where bacteria can hide), and food-grade materials like #304 Stainless Steel, making them easy to clean and compliant with international food hygiene standards.
8. What is the standard thickness of the door panel?
Our standard impact traffic doors typically feature a panel thickness of 40mm, which provides a good balance between insulation and lightweight operation.
9. What insulation material is used inside the door?
We use high-density Polyurethane (PU) foam injected under high pressure. This provides excellent thermal insulation and structural strength.
10. What material is the door surface made of?
Customers can choose between 304 Stainless Steel (best for hygiene and durability) or Painted Galvanized Steel (cost-effective). We also offer ABS or PE facing for specific impact requirements.
11. How does the "Gravity Hinge" system work?
Unlike spring hinges that can wear out, a Gravity Hinge uses the weight of the door to close it. When the door is pushed open, it rises slightly; gravity then pulls it back to the closed center position. This system is extremely durable and virtually maintenance-free.
12. Can the door stay open if needed (Hold-Open feature)?
Yes. The hinge design allows the door to "dwell" or stay open when pushed past 90 degrees. This is useful during sustained loading periods.
13. Are the windows on the door shatterproof?
Yes. We use double-glazed acrylic or polycarbonate windows. They are designed to be shatter-resistant for safety in busy industrial environments.
14. What are the "Bumpers" or "Kick Plates" made of?
We use high-impact PE (Polyethylene) or PVC sheets. These are installed on the lower half of the door to protect the stainless steel panel from scratches and dents caused by carts and forklifts.
15. What type of seal is used around the door edges?
We use high-quality, tear-resistant rubber gaskets along the vertical edges to prevent air leakage. These gaskets are easily replaceable.
16. Can these doors be installed on sandwich panel walls?
Yes, but the wall opening requires reinforcement. We recommend installing a C-channel sub-frame (aluminum or steel) inside the panel opening to support the weight and movement of the door.
17. Do you offer single-leaf and double-leaf options?
Yes. For narrow openings (under 1.2m wide), we recommend a Single Leaf door. For wider openings (up to 2.4m or more), a Double Leaf door is required.
18. Can I customize the size of the window?
Yes, while we have standard window sizes, we can customize the vision panel size or shape based on your specific requirements.
19. How do I measure the opening for a swing door?
We need the Clean Opening Width and Clean Opening Height (finish-to-finish dimensions). If you have a sub-frame installed, please measure the inside of the frame.
20. Is the installation process difficult?
No, it is relatively straightforward. The door frame is mounted to the wall, and the door leaves drop onto the hinge pins. Detailed installation manuals and video guides are provided with every order.
21. How long is the warranty period?
We provide a standard 1-year warranty on the door panel and hardware against manufacturing defects.
22. Do the hinges require lubrication?
Our gravity hinges are designed to be self-lubricating or use nylon bearings, requiring very little maintenance. However, applying a food-safe grease once a year ensures smooth operation.
23. Are spare parts (gaskets, hinges) easily available?
Yes. We stock all necessary spare parts. Since gaskets are wear-and-tear items, we can include extra sets in your initial shipment upon request.
24. What happens if the door gets scratched?
If you choose the Stainless Steel finish, minor scratches can be buffed out. For deep impacts, the bumper plates are designed to take the hit, preserving the structural integrity of the door.
25. How do you package the doors for export to prevent damage?
We use a triple-layer protection method: PE film wrapping + foam corner guards + fumigation-free plywood cases. This ensures the doors arrive scratch-free.
26. What is the Minimum Order Quantity (MOQ)?
Our MOQ is 1 set. We are happy to support both small sample orders and large project bulk orders.
27. What is the production lead time?
For standard sizes, production takes 7-10 days. For custom sizes or large quantities, it typically takes 15-20 days.
28. Can you print our company logo on the packaging?
Yes, we offer OEM services. We can label the packaging with your brand name, logo, and project reference numbers.




.438.1.jpg)




